湿法制粒线在线检测手艺的利用处景和尝试数据

翰林湿法治粒线
1.制粒装备起点鉴定道理
⑴ 近红外查测含水量和粒度分布的主线任务原理
近红外检测工具土壤水分的人生道理:近红外光谱图首选是根据份子振功的非谐振性使份子振功从基态向震撼级跃迁时发生的的,具(ju)备(bei)较(jiao)强的(de)穿透(tou)才能。近(jin)(jin)红(hong)外(wai)光(guang)(guang)首要是对含氢(qing)基团(tuan)X-H(X=C、N、O、S)振动(dong)的(de)倍频和合频接收(shou)(shou)。因为水(shui)份(fen)子中含有O-H,会(hui)接收(shou)(shou)特定波长(zhang)的(de)近(jin)(jin)红(hong)外(wai)光(guang)(guang)。在特定波长(zhang)下,反射(she)(she)归去(qu)(qu)的(de)近(jin)(jin)红(hong)外(wai)能量(liang)与物料(liao)(liao)中水(shui)份(fen)子接收(shou)(shou)的(de)近(jin)(jin)红(hong)外(wai)能量(liang)成正比,即物料(liao)(liao)中的(de)水(shui)份(fen)含量(liang)越高,反射(she)(she)归去(qu)(qu)的(de)能量(liang)就越低(di)。近(jin)(jin)红(hong)外(wai)检测粒径的(de)道理(li):样品粒度的(de)差别间接影响样品对近(jin)(jin)红(hong)外(wai)光(guang)(guang)的(de)接收(shou)(shou)和散射(she)(she),从而致(zhi)使光(guang)(g🤡uang)谱的(de)变异(yi)。不异(yi)组分的(de)样本(ben),跟(gen)着(zhe)颗(ke)粒度的(de)增添,吸光(guang)(guang)度会(hui)增添。物料(liao)(liao)在制粒进程中粒度会(hui)逐(zhu)步增大,其光纤激光切割机的外层粗拙,的影响光反射光谱分析。按照光谱的变更和检测的粒径散布,利用化学计量学成立粒度散布定量阐发模子,对制粒进程中的粒度变更停止及时检测。
⑵ 流化床关键鉴定费的级任务启发:
流化床制粒共分为三个阶段,夹杂、制粒、枯燥。别离对着三个阶段停止样品收罗,样品收罗的同时检测光谱。以粒径,水份含量为考核目标,成立近红外光谱与物料(粒径、含水量)的相干性,并经由进程数学处置计划停止数据拟合阐发并成立数学模子。
经由进程多批次的物料考证,证实模子的展望值与现实值的偏差合适请求。从而证实该模子合用于该种类物料。准绳上,后期搜集的数据越多,模子曲线越持续,越精确。
流化床顶喷制粒三维建模具体步骤
⑶ 湿法冶粒机的起步评定(含水量,小粒提取率)
湿法制粒分为夹杂阶段、吸水阶段、构成粘体桥阶段、构成毛细管阶段、构成团块、液化阶段,构成毛细管阶段和构成团块阶段时物料含水量约为25%,若是水份高于这个阶段,那制粒结果就不好。
制粒目标进步药物的活动性,削减粉尘,颗粒得率是评估制粒颗黑白的一个间接目标,颗粒得率凹凸间接反应了制粒胜利与否,颗粒得率越高工艺参数越公道。
⑷ 湿法治社会粒关键监定的启示:
跟着粘合剂的插手,粒径不时增大,同时粘合剂和物料的夹杂平均度也在不时趋于平均,当到达某一个须要的值时辰,反应出来的便是其搅拌桨的功率值在绝对小的一个规模内,功率可换算成电流或扭力,如许应当能够经由进程扭力或电流来节制粘合剂的插手量和制粒的时候(颗粒的巨细)。在制粒进程中把近红外手艺也连系出去,假设插手粘合剂量为一个定值,那咱们就能够把物料性子的变更(物料含水量平均性和颗粒平均性)和扭矩、近红外光谱成立起对应的干系,从而成立模子,依托模子来实现起点鉴定。
湿法制建设粒共划分成三大周期,干掺杂、参与上胶剂制软材,卸料整粒。别离对前两个阶段停止样品收罗,样品收罗的同时检测近红外光谱,检测搅拌主轴扭矩。以物料含水量,颗粒得率为考核目标,成立近红外光谱和搅拌扭矩值与物料(颗粒得率、含水量)的相干性,并经由进程数学处置体例停止数据拟合阐发并成立数学模子。
湿法制粒进程(cheng)
2.带起点鉴定功效湿法制粒机的布局
● 带动点评定的湿法纪粒机的布置图
按照中药提取物粘性强,活动性差等特色,针对今朝高剪切制粒对中药提取物适合性差、智能化水平低、在线检测功效缺失的题目,设想出以下高剪切制粒机图纸,详细见下图
湿法纪粒机的布置图
该装备首要由6局部构成,如上图所示:
1、制粒刀组件 2、制粒锅 3、锅盖组件 4、出料系统 5、搅拌系统 6、整粒系统
密封布局图图
由图可知,进气孔A是一路用于密封检测的紧缩氛围,在机器密封1和机器密封2之间通入紧缩氛围,在密封一般的环境下进气孔A的紧缩氛围流量变更规模很小的,可是当机器密封1和机器密封2肆意一道密封破坏时,进气孔A的紧缩氛围流量就会俄然增添,能够经由进程检测这个流量的变更来鉴定密封是不是破坏。同时地区A也构成了一道正压缓冲区,这个缓冲区能够将机器密封1和机器密封2响应侧的净化源离隔,避免在制粒进程中因机器密封破坏构成穿插净化。
进气孔B是扭转轴吹气体(ti),它使地区B绝对地区C构成正压,避免粉尘进入地区B。同时在洗濯进程中进气孔B也可进水,对地区B停止洗濯,洗濯实现以后经由进程紧缩氛围吹扫将地区B中的残留水断根。
搅拌装置桨转动设计
搅拌系统首要由以上5局部构成:
1、搅拌桨 2、驱动轴 3、联轴器 4、扭矩传感器 5、加速机
在搅拌轴上间接装置了扭矩传感器,扭矩传感器间接测制粒进程中物料施加🤪在搅拌桨上的阻力,受外界搅扰小,活络度高,重演性好。
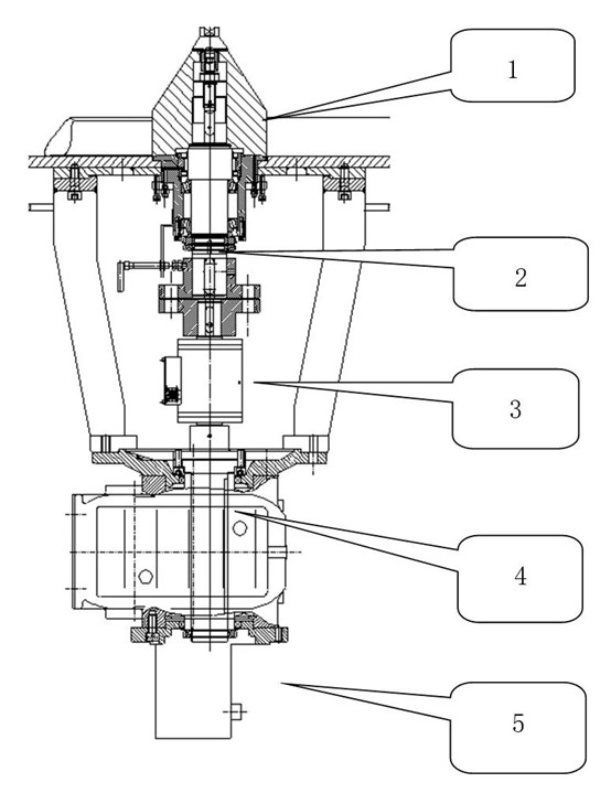
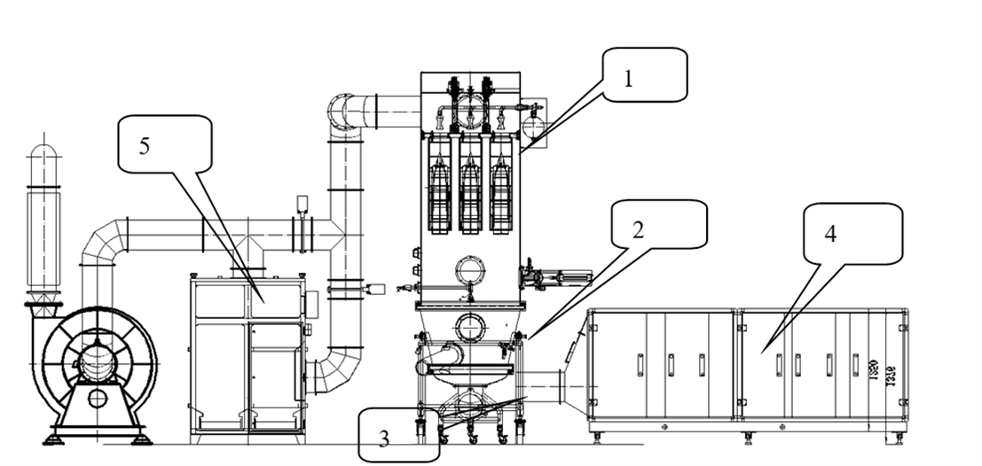
3.带起点鉴定功效流化床的布局
带动点认定的流化床布局图图
本名目需研发ꦚ的带起点鉴定的流化床装备,一(yi)共(gong)分为5个(ge)组件,别离(li)是:1、顶仓 2、物料仓 3、可挪动底(di)仓 4、进风处置单(dan)位(wei)局部 5、排风系统
● 近红外光谱图仪控制系统国际地位的想法与抽样器的想法
流(liu)化床起点鉴定是须要成立物(wu)(wu)(wu)料(liao)特征和近红(hong)外光谱的(de)(de)(de)对(dui)应(ying)模子的(de)(de)(de),以是就须要设想一个特地的(de)(de)(de)取样口,在收罗光谱的(de)(de)(de)同时将物(wu)(wu)(wu)料(liao)在3秒内掏(tao)(tao)出(chu)。近红(hong)外光谱仪的(de)(de)(de)装置(zhi)地位(wei)要保(bao)障(zhang)镜(jing)头(tou)利(li)用能够打仗到物(wu)(wu)(wu)料(liao)。取样机构的(de)(de)(de)装置(zhi)地位(wei)尽ಞ(jin)能够靠近于近红(hong)外镜(jing)头(tou),确保(bao)掏(tao)(tao)出(chu)的(de)(de)(﷽de)样品与近红(hong)外装备检测的(de)(de)(de)样品最为靠近。
近红外光谱仪仪与制样器试验装置主导地位图
近红外与矿仓齐平系统设计图
4.带起点鉴定手艺的制粒与流化床装备机能目标
流化床总体目标
湿法冶粒机总体目标
